Mathilde og Mikael bygger K2 Individual Funkis

HVORFOR MATHILDE OG MIKAEL VALGTE K2 HUSET

For os var det vigtigt at rammerne for byggeriet ikke var for fastlåste. Vi havde brug for et fleksibelt firma, som kunne bistå med rådgivning i forhold til de ønsker vi havde.

Det var også et must at firmaet virkede troværdige og nede på jorden. Vi havde en præcis idé om hvad vi gerne ville have af materialer, så det var vigtigt at det var et firma der ku’ opfylde de ønsker.

Vi ville gerne være medbestemmende i forhold til plantegning, og K2 var åbne overfor vores forslag, og kom med gode løsninger.

Vi har været i kontakt med mange byggefirmaer i processen, men valget faldt på K2, grundet en god dialog og god omtale; vores indtryk er også, at K2 har en vis stolthed i det de aflevere.

Vi kan ikke sætte en finger på hele processen under byggeriet. Vi har haft en løbende god dialog og vi har haft mulighed for at ændre på noget undervejs, og ikke være fastlåst af en underskrift inden første spadestik.

Hvis vi har lavet nogle ændringer undervejs har vi fået en pris som vi hurtigt kunne forholde os til.

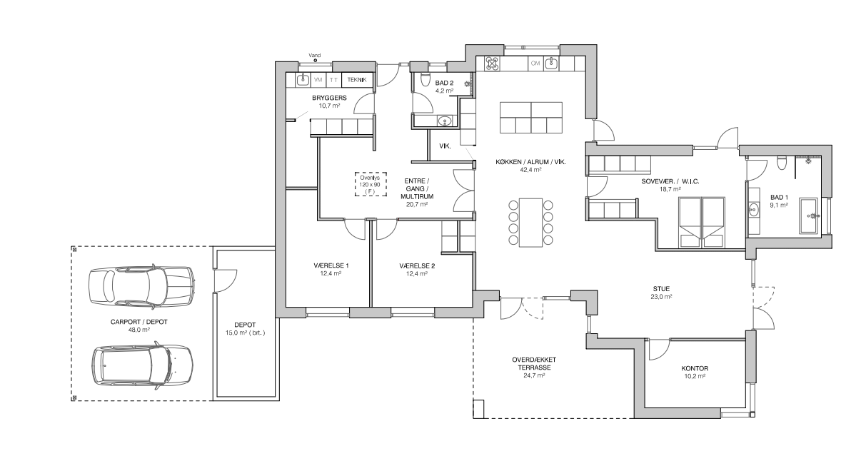
Vi er vilde med vores lysindfald fra vores ovenlysvinduer i både køkken/alrum og multirum, hvilket var et forslag vi havde med, og som K2 bare har udført på den fineste måde.

Vi har været trygge hele vejen og ikke været i tvivl om at de overholdt det lovede, både kvalitets- og tidsmæssigt.

Der har været pænt og ryddeligt under hele byggeprocessen og alle dem vi har mødt undervejs har været imødekommende og hjælpsomme.

Vi vil anbefale K2 til hver en tid.

 

MATHILDE OG MIKAEL VALGTE HUSTYPEN FUNKIS, FORDI..

Der har aldrig været tvivl om at vi ønskede et Funkis hus. Det giver mange muligheder i forhold til indretning og så ønskede vi et stort og lyst køkken/alrum, fordi der bliver brugt mange timer netop der.

Højt til loftet og mulighed for mange kroge og indhak, var noget af det vi gerne ville tage med videre fra vores Københavner lejlighed, men i en ny fortolkning.

Mulighederne for selv at bestemme inddeling af rummene, lysindfald og terrasser flere steder var afgørende for os.

Kunne du se dig selv
i noget lignende?

Vi har bygget hundredevis af huse – og kan tilpasse plantegninger og udtryk, så de matcher jeres grund, behov og budget.

Du kan også se

K2 Individual Funkis

Kira og Kasper bygger K2 Individual Arkitec

Tina og Mads bygger K2 Individual Funkis

Marianne og Mickey bygger K2 Individual Arkitec

Anne-Mette og Jonas bygger K2 Individual Funkis