Med skrå tagflader, forskudte linjer og store vinduespartier er Arkitec stilen for dig, der ønsker et moderne og personligt udtryk. Her får du et hjem med visuel kant og funktionel planløsning – bygget til både øjet og hverdagen.
Arkitec-stilen bygger på ønsket om at skabe noget unikt – uden at larme. Facaderne er kendetegnet ved ensidig taghældning, skrå vinkler og store vinduespartier, der bringer dagslyset helt ind i boligen.
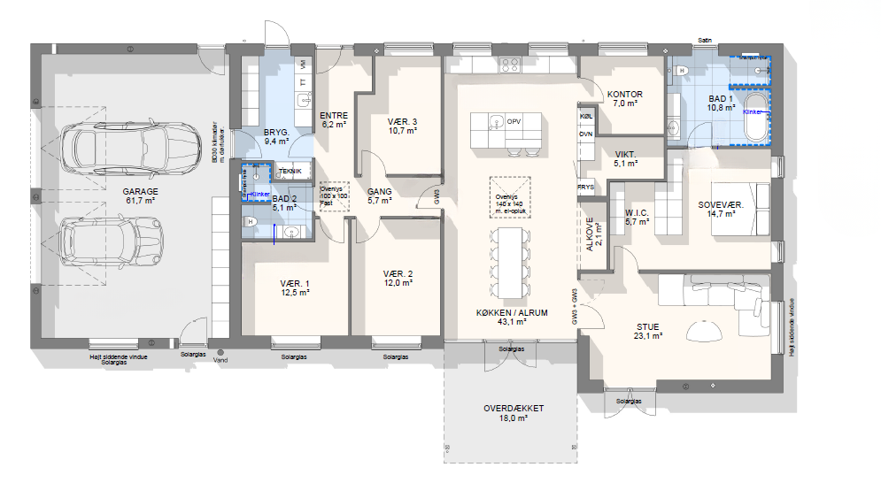
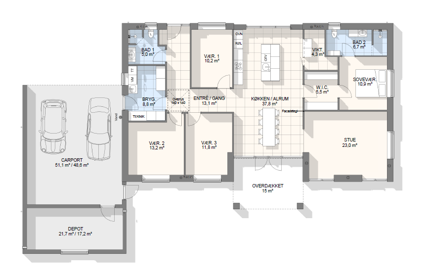
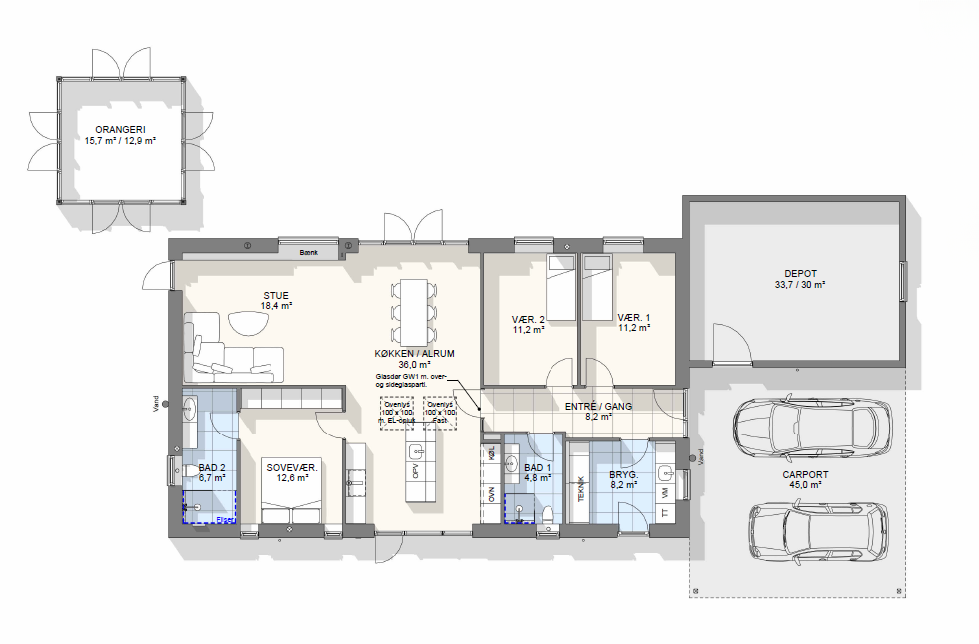
Sammen med vores byggerådgivere kan du tilpasse plantegninger og materialevalg, så både arkitektur og funktion passer til jeres hverdag og grund.






Vi hjælper dig med at finde den rette planløsning og tilpasse stilen, så den passer til jeres grund og behov. Book et møde eller bliv kontaktet – og oplev, hvordan god arkitektur starter med god rådgivning.