K2 Living er vores mest populære hustype – skabt til dig, der ønsker et gennemtænkt hjem med moderne komfort, fleksible løsninger og personlig stil. Vælg mellem tre byggestile og tilpas plantegningen, så den matcher din hverdag.
K2 Living er designet til at skabe balance mellem funktion og æstetik. Med faste, gennemprøvede plantegninger og mulighed for tilpasninger får du både tryghed og frihed. Du vælger selv stilretningen – Classic, Funkis eller Arkitec – og vi hjælper dig med at tilpasse planløsningen, så den passer til jeres liv, jeres grund og jeres budget.
Det er nybyggeri med klare rammer og god plads til personlighed.








Book et uforpligtende møde med en byggerådgiver – og få hjælp til at vælge den rigtige stil, planløsning og grundløsning. Vi hjælper dig trygt gennem hele rejsen.
K2 Living er for dig, der ønsker et moderne typehus med funktionel planløsning, masser af dagslys og mulighed for personlig tilpasning. Uanset om du foretrækker et klassisk udtryk, en arkitekttegnet facade eller et minimalistisk funkisdesign, kan K2 Living tilpasses jeres stil, behov og grund.
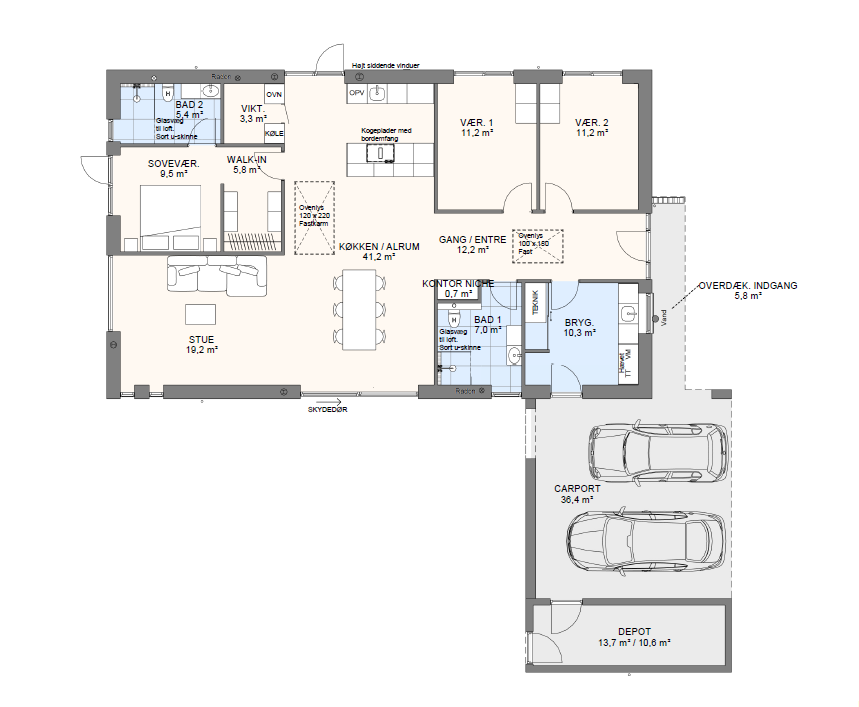
Vores plantegninger er udviklet med udgangspunkt i mere end 1.000 familiehuse – og netop derfor fungerer de. Rummene hænger sammen, uden at gå på kompromis med opdeling og privatliv. Der er tænkt over adgangsforhold, opbevaring, udsyn og solforhold – alt det, der gør en bolig nem at leve i.
Du kan vælge mellem Classic, Arkitec eller Funkis – og selv sætte dit præg på indretning, vinduesplacering og funktioner som walk-in, multirum, viktualierum og overdækket terrasse. Derudover kan planløsningen spejlvendes og tilpasses jeres grund, så I får det optimale ud af både placering og udsigt.
K2 Living er et trygt valg for familier, der ønsker et smukt, fleksibelt og fremtidssikret hjem – bygget i kvalitetsmaterialer, leveret til aftalt tid og pris.