Vil du bygge et hjem, der ikke ligner nogen andres? Med K2 Individual får du friheden til at skabe et helt unikt hus – tegnet fra bunden og tilpasset jeres grund, ønsker og hverdag.
K2 Individual er til dig, der ønsker fuld frihed i dit byggeri. Her arbejder vi ikke ud fra standardløsninger, men designer dit nye hjem fra bunden i tæt samarbejde med dig.
Vi rådgiver dig om alt fra placering på grunden til materialevalg og lysindfald – og skaber sammen et hjem, der afspejler din hverdag, dine værdier og din æstetik.
Ingen to K2 Individual-huse er ens – men alle bygger på kvalitet, dialog og tillid.









Book et møde med en af vores byggerådgivere, og fortæl os om jeres idéer, behov og drømme. Vi skitserer mulighederne og guider jer hele vejen fra tanke til færdigt hjem.
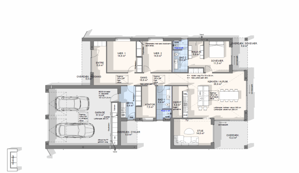
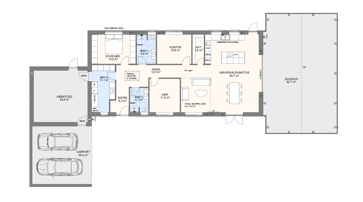
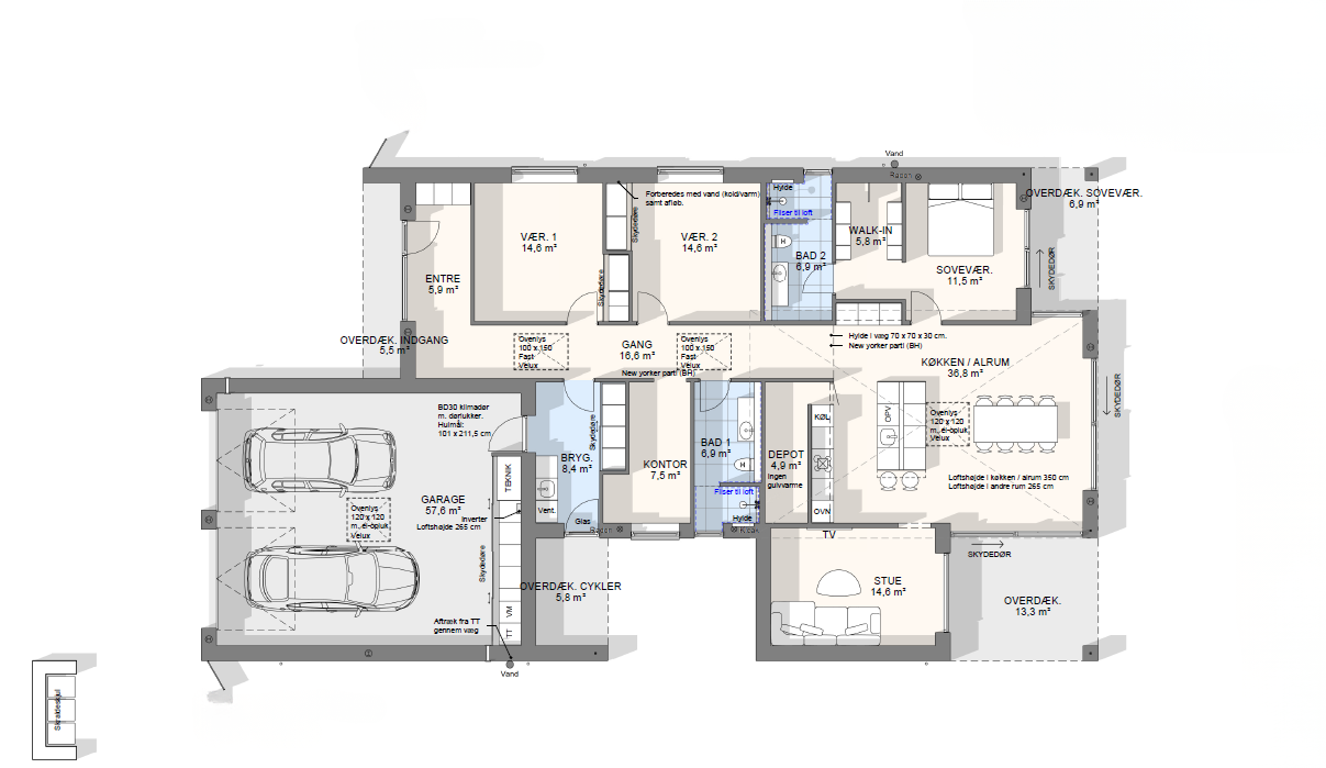
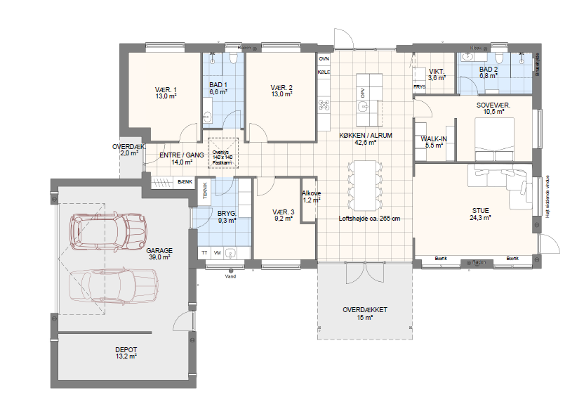
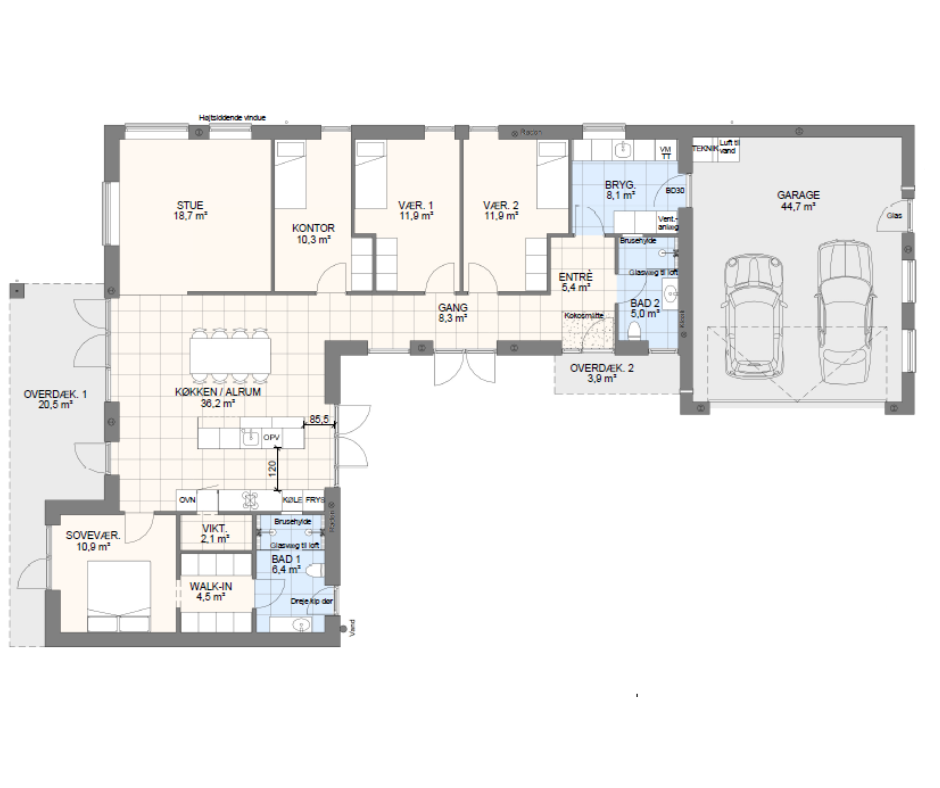
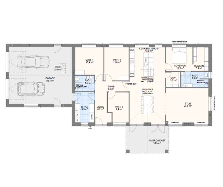
K2 Individual er vores mest fleksible og personlige hustype. Den er skabt til jer, der ønsker noget andet end typehus – og som gerne vil tage aktiv del i designet af jeres hjem. Her begynder vi ikke med en færdig plantegning, men med en samtale.
Vi lytter til jeres behov, undersøger grunden og skitserer en løsning, der passer til både jeres liv og budget. K2 Individual giver mulighed for helt særlige rumløsninger, alternative vinkler, dobbelthøje lofter, orangerier, integrerede garager og meget mere.
Sammen skaber vi et hjem, der er formet omkring jeres liv – ikke omvendt.