Få et arkitekttegnet hjem – til en fast, fair pris

K2 Value Concept forener moderne design, faste planløsninger og stærk økonomi.

Et moderne hjem uden overraskelser

K2 Value Concept er skabt til dig, der ønsker et moderne og funktionelt hjem – uden at sprænge budgettet.
Du vælger en størrelse, vi har sørget for resten:

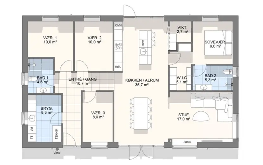
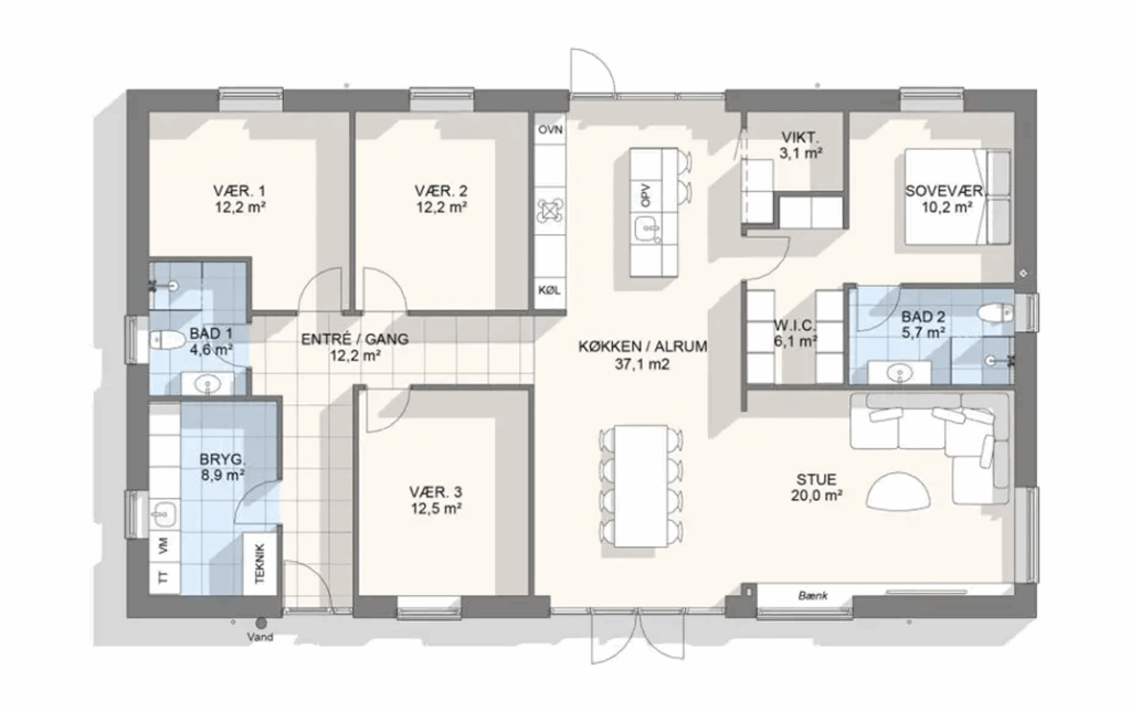
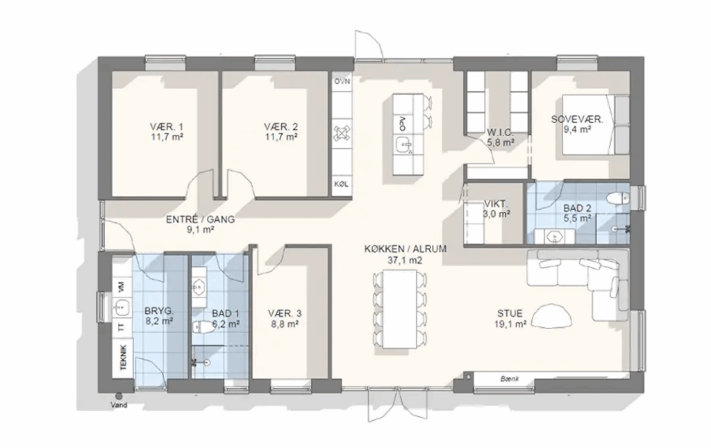
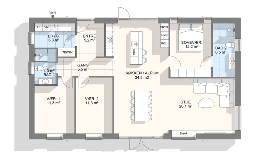
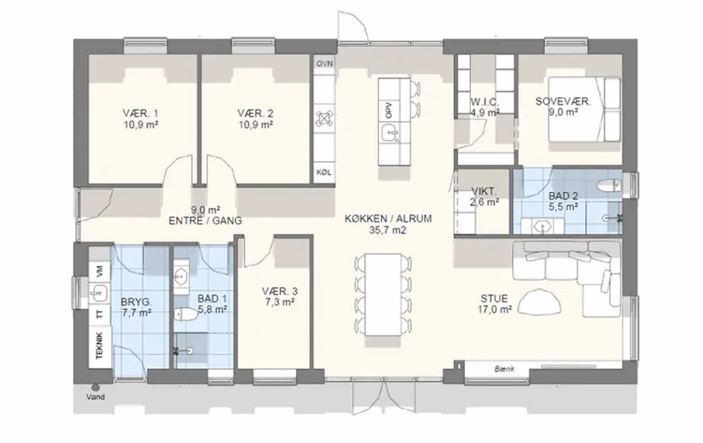
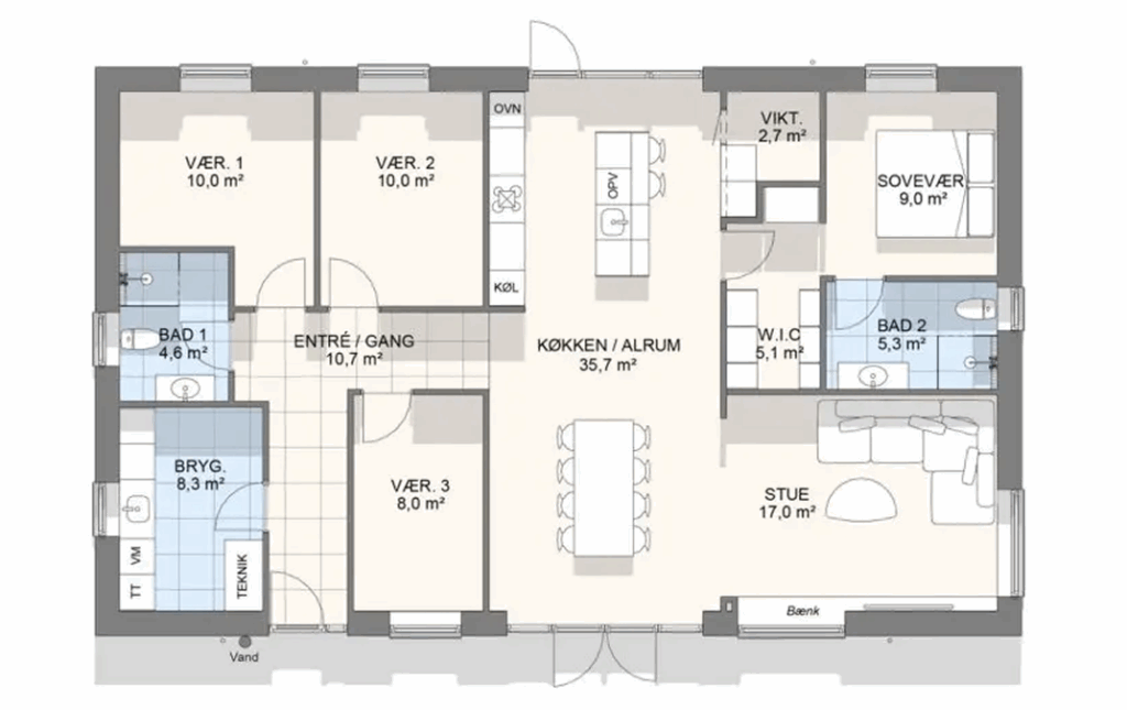
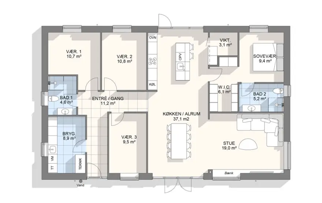
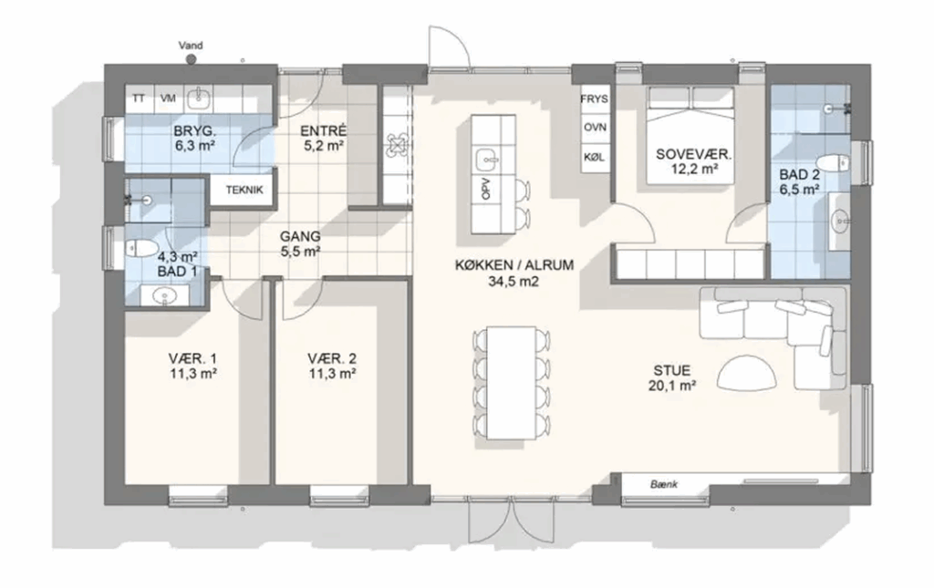
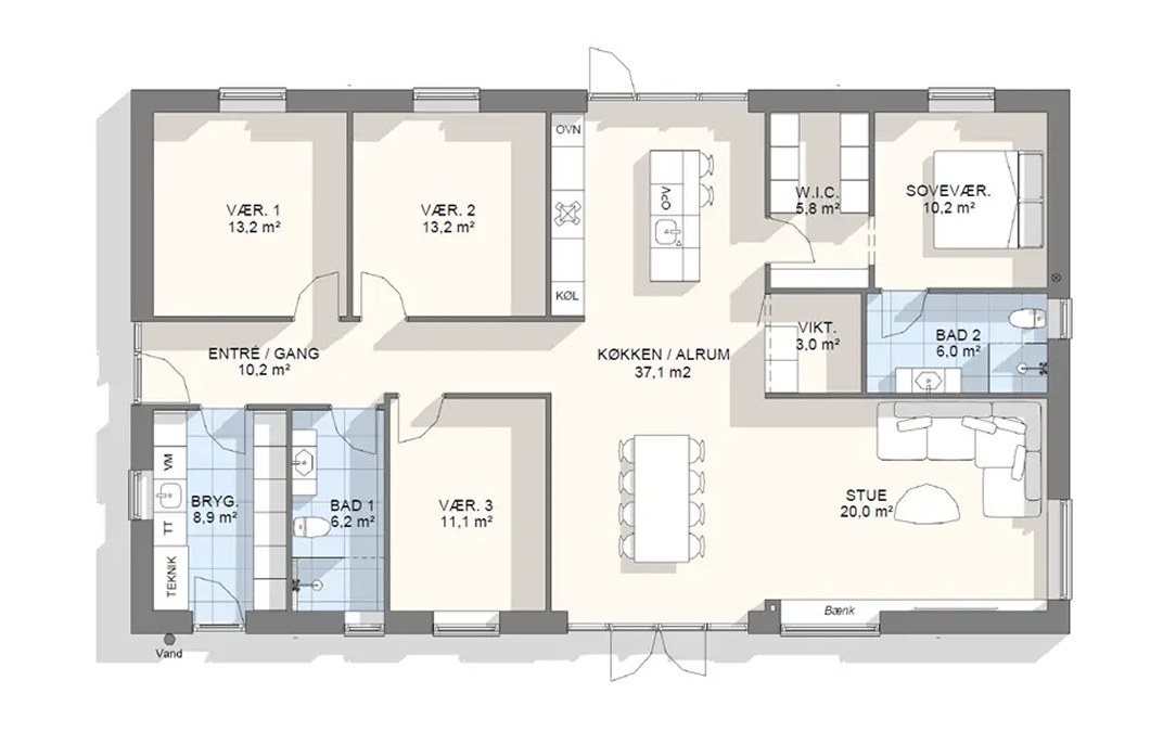
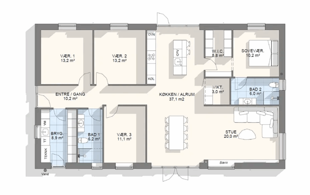
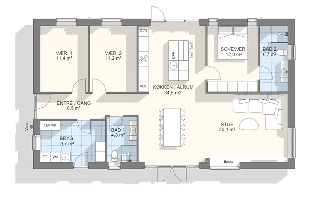
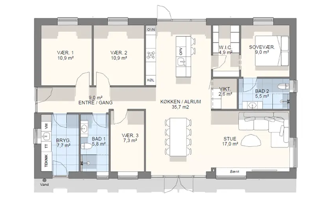
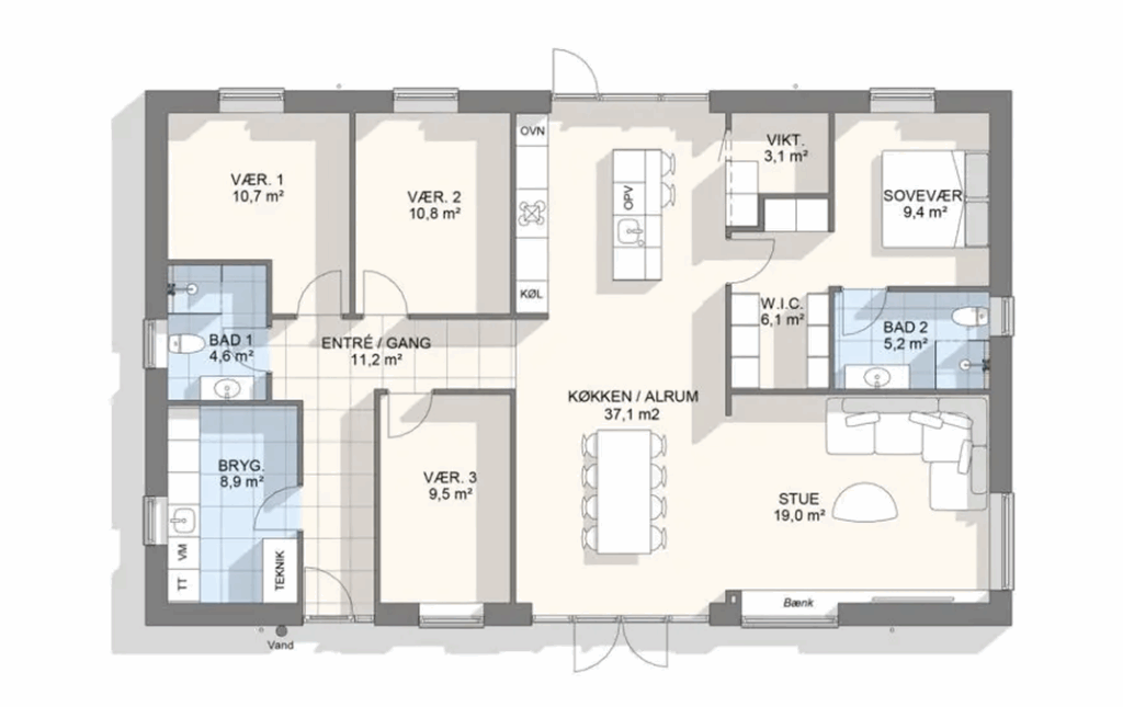
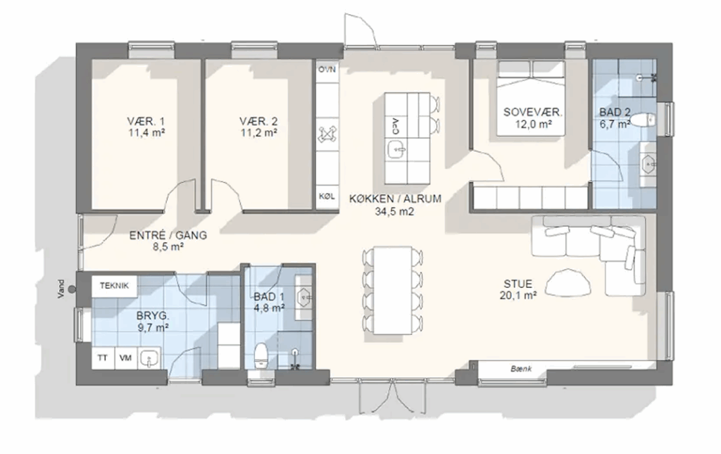
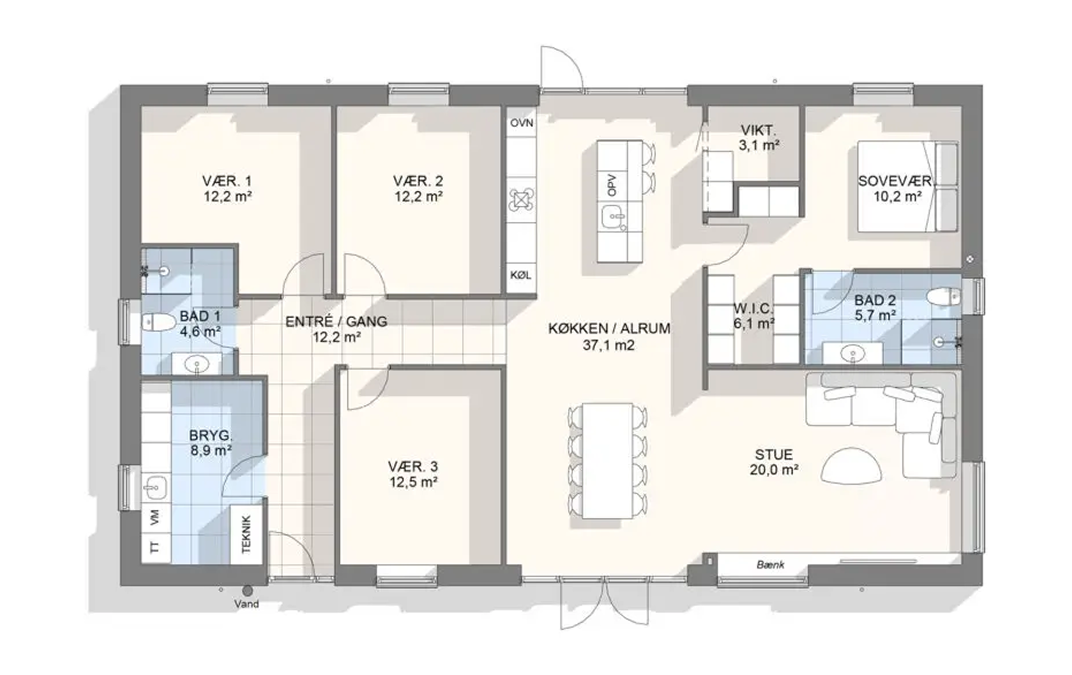
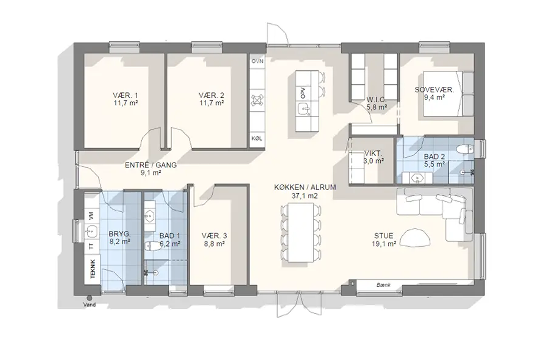
Vælg størrelse – 130 til 170 m²

130 M² FRA KR. 1.950.000

130 M² FRA KR. 1.950.000

140 M² FRA KR. 2.050.000

140 M² FRA KR. 2.050.000

150 M² FRA KR. 2.150.000

150 M² FRA KR. 2.150.000

160 M² FRA KR. 2.250.000

160 M² FRA KR. 2.250.000

170 M² FRA KR. 2.350.000

170 M² FRA KR. 2.350.000

Designvarianter – Mocca Nova & Sputnik

Mocca Nova

Bløde linjer, varme farver og funktionel planløsning.
Huset er vist med tilvalg.

Sputnik

Skarpt funkisdesign med stringente linjer og grafisk udtryk.
Huset er vist med tilvalg.

Kvalitet og fleksibilitet
– indtænkt fra start

Er du klar til at tage næste skridt?

Vi hjælper dig videre med personlig rådgivning og plantegninger tilpasset din grund og dine behov.

K2 Value Concept – moderne huse med plads til livet

Drømmer du om et funkis-inspireret hjem med gennemarbejdet plantegning og høj kvalitet?

K2 Value Concept gør det nemt og overskueligt at bygge nyt.
Vælg den størrelse, der passer til jer – og oplev fordelene ved trygt nybyggeri uden overraskelser.