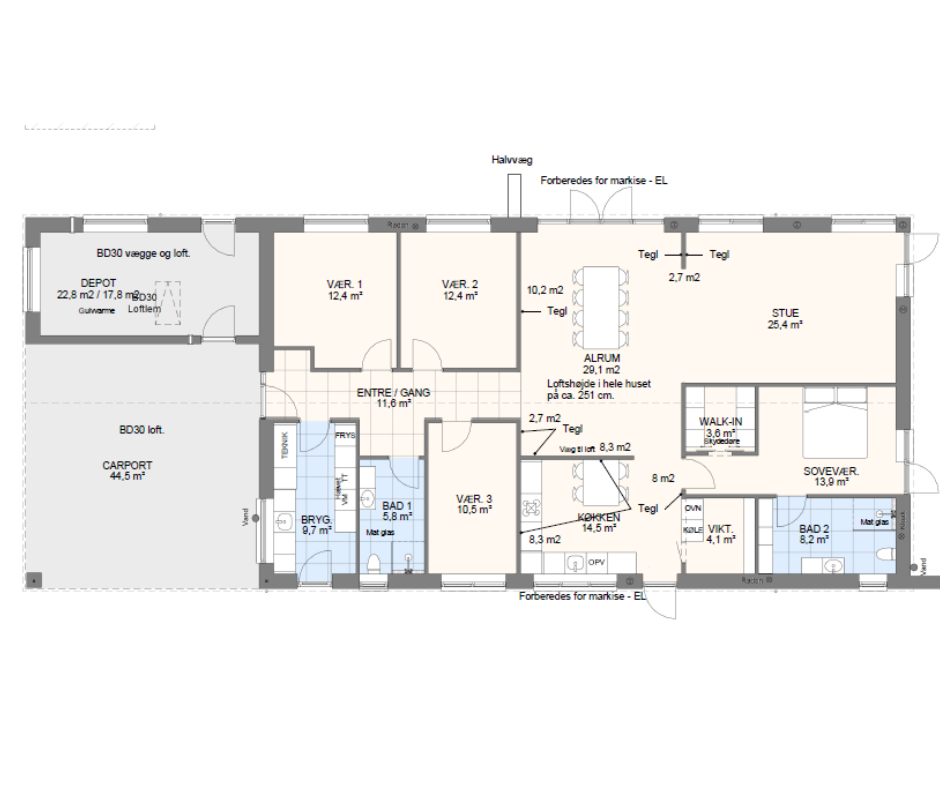
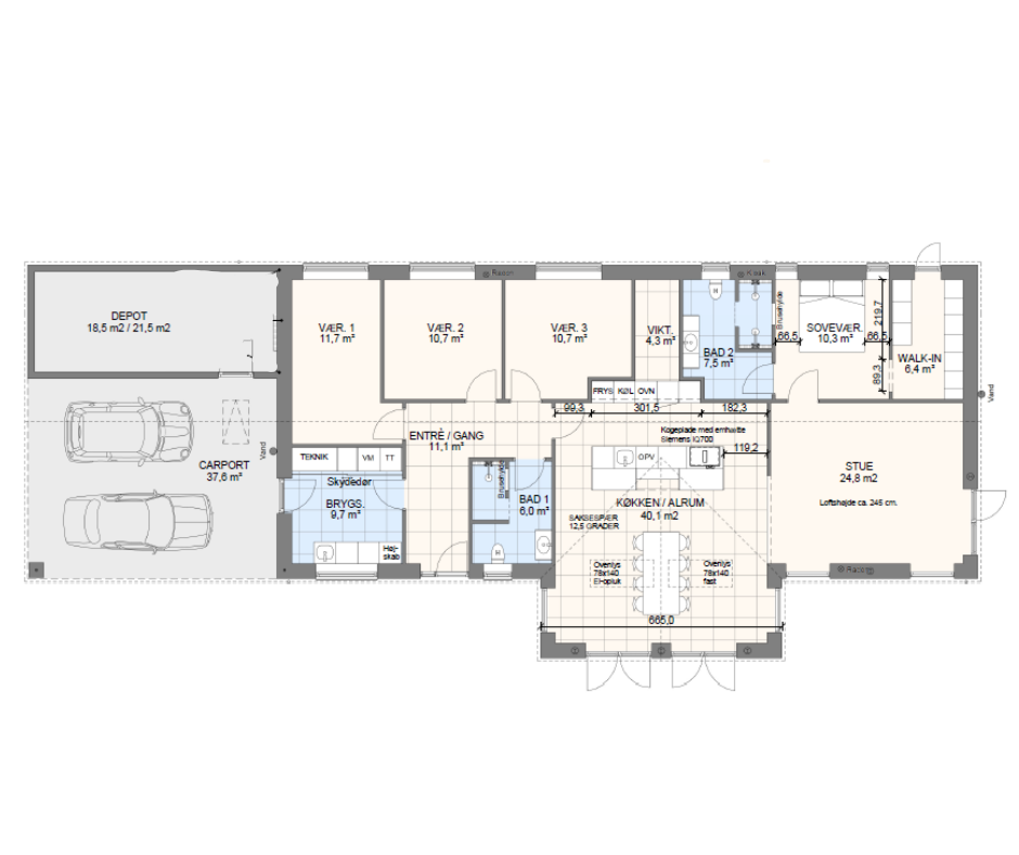
Classic-stilen er for dig, der drømmer om et harmonisk og funktionelt hjem med klassisk dansk arkitektur. Her får du sadeltag, symmetri og rene proportioner kombineret med moderne plantegninger og praktiske løsninger.
Classic-stilen trækker på de bedste elementer fra dansk parcelhusarkitektur: sadeltag, klassisk facadeopbygning og en arkitektur, der falder naturligt ind i de fleste villakvarterer. Udtrykket er roligt, velkendt og tidløst – men bag facaden gemmer der sig moderne rumforløb, dagslys og fleksible muligheder.
Et Classic-hus passer perfekt til familier, der ønsker et hjem med balance mellem det traditionelle og det funktionelle.







Book et møde med vores byggerådgivere og få sparring omkring plantegninger, tilpasninger og materialevalg i Classic-stilen. Vi hjælper dig trygt videre – fra idé til færdigt hjem.