Karen og Niels Jørgen bygger K2 Classic

HVORFOR KAREN OG NIELS JØRGEN VALGTE K2 HUSET

På grund af nye naboer – et sygehus og en motorvej – valgte vi at flytte og bygge nyt hus. Ved et tilfælde blev vi anbefalet K2 huse. Det var et ukendt firma for os, men argumentet med høj kvalitet og præcision gjorde, at vi valgte det. Samarbejdet og resultatet er perfekt.

Vi fik alle ønsker og forventninger opfyldt.

Indflytningsklar og færdig i god tid før aftalt tid. Sådan!!!!!

 

KAREN OG NIELS JØRGEN VALGTE HUSTYPEN CLASSIC, FORDI..

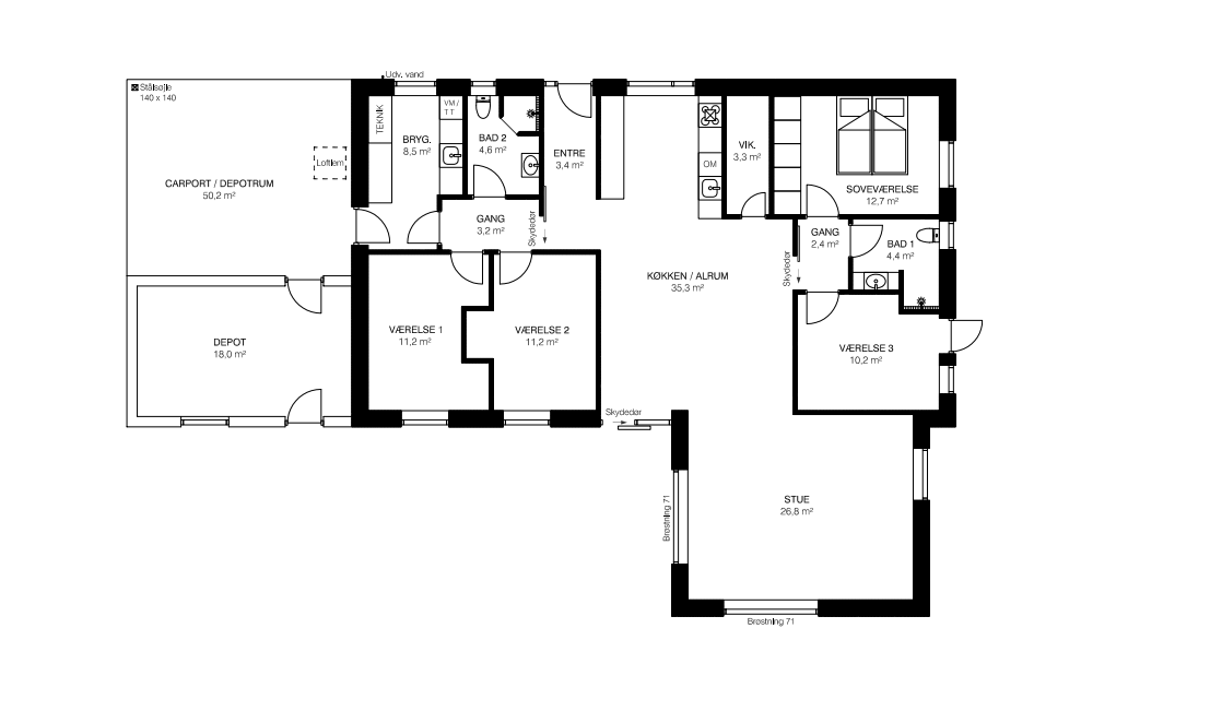
Vi ønskede et hus, der var funktionel uden spildplads, og med et stilrent udseende. En god akustik var vigtig, og det fik vi bl.a. på grund af loftmaterialet og et trælignende gulvmateriale ens i hele huset, og klinker i vådrummene.

Alle vinduer er uden sprosser, der generer udsigten og tager lyset.

Skydedøre i begge ender af huset lukker af for de to værelsesafdelinger. Køkkenalrum og stue i et i midten af huset fungerer perfekt.

Kunne du se dig selv
i noget lignende?

Vi har bygget hundredevis af huse – og kan tilpasse plantegninger og udtryk, så de matcher jeres grund, behov og budget.

Du kan også se

Inga og Jens bygger K2 Basic

Louise og Sejer bygger K2 Classic

Stine og Kaspar bygger K2 Classic

Michelle og Mikael bygger K2 Classic

Lykke og Johnny bygger K2 Classic