Louise og Sejer bygger K2 Classic

HVORFOR LOUISE OG SEJER VALGTE K2 HUSET

Vi talte med flere forskellige byggefirmaer og K2 gav os den bedste mavefornemmelse. Vi blev altid mødt venlig og imødekommende. Alle de ønsker og idéer vi havde kunne opfyldes, samtidig med at byggerådgiveren var rigtig god til at holde os på det rette økonomiske spor, hvis idéerne begyndte at stikke af, da vi ønskede et fast budget fra start. Undervejs i byggeforløbet kunne vi altid komme og se hvordan byggeriet formede sig. Derved fik vi også ændret et par småting undervejs i byggeprocessen. De håndværkere som opfører K2 Husene har alle været venlige. Ved behov har de også været gode til i byggeforløbet at kontakte os, for at sikre at arbejdet blev udført som vi ønskede det. Ligeledes var håndværkerne gode til at komme med konstruktive og kreative løsninger på finishen, hvilket forbedrede vores idéer og ønsker. Oplevelsen med at bygge med K2 Huset har været en god og tryg oplevelse. Vi vil til enhver tid anbefale andre at bygge med K2, og skal vi selv bygge igen engang, vender vi tilbage til K2 Huset.

Vores råd til andre der skal bygge nyt:

  • Tag rundt og se en masse udstillingshuse for at få nogle gode idéer.
  • Afsæt god tid til at få lavet plantegningen, men stop også på et tidspunkt, for man kan blive ved og ved og ved…
  • Vælg et byggefirma hvor du føler dig tryg. Et, – hvor du har ro i maven og tillid til at de gør det rigtigt/ordentligt.
  • Lyt til byggerådgiveren, de er vant til at arbejde med mange forskellige løsninger.

 

LOUISE OG SEJER VALGTE HUSTYPEN CLASSIC, FORDI..

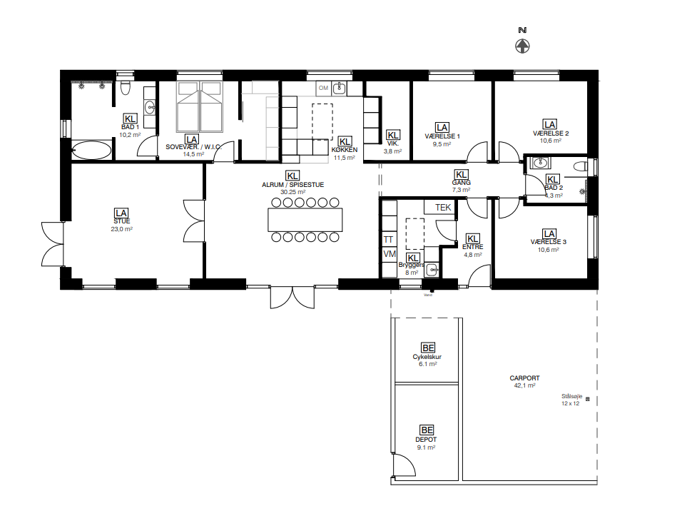
Vi synes det er et pænt hus, hvor der er mulighed for at åbne loftet op med saksespær, hvilket vi er meget glade for i vores køkken/alrum. Samtidig er der mere hygge i stuen, hvor vi ikke har valgt saksespær, men almindelig loft højde.

Kunne du se dig selv
i noget lignende?

Vi har bygget hundredevis af huse – og kan tilpasse plantegninger og udtryk, så de matcher jeres grund, behov og budget.

Du kan også se

Inga og Jens bygger K2 Basic

Karen og Niels Jørgen bygger K2 Classic

Stine og Kaspar bygger K2 Classic

Michelle og Mikael bygger K2 Classic

Lykke og Johnny bygger K2 Classic