Anne-Mette og Jonas bygger K2 Individual Funkis

HVORFOR ANNE-METTE OG JONAS VALGTE K2 HUSET

Vi gik meget op i at det firma vi ønskede at bygge med, skulle være fleksibelt og kunne lave individuelle løsninger. Efter første møde med K2 Huset havde vi en god dialog, og valget faldt herfor naturligt på dem, Fordi det var muligt med individuelle løsninger, samt at de er gode til at komme med løsningsforslag. Samtidig havde vi udelukkende hørt positivt fra andre som havde bygget med dem.

Og vi kan kun give vores varmeste anbefalinger videre.

 

ANNE-METTE OG JONAS VALGTE HUSTYPEN FUNKIS, FORDI..

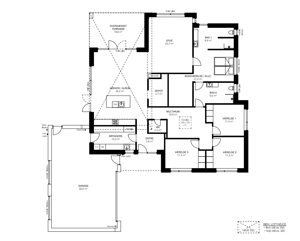
Vi har selv tegnet huset, og har aldrig været i tvivl om at vi ønskede at bygge funkis. Under udarbejdelsen af tegningerne lagde vi stor vægt på funktionalitet, samt at tilpasse huset grunden og hermed lysindfald. Vi er utrolig glade for vores køkkenalrum, som har højere til loftet end resten af huset. Viktualierummet er implementeret i køkkenet, bag en skabslåge, hvilket fungere rigtig godt. Mellem køkkenalrum og stue har vi en gaspejs, som vi nyder synet af i vinterhalvåret. I forhold til børn er vi glade for børneafdelingen, som hænger sammen via et multirum med ovenlysvindue. Soveværelse samt det tilhørende badeværelse er lavet i ét, i hverdagen og synsmæssigt er det en fantastisk løsning.

Kunne du se dig selv
i noget lignende?

Vi har bygget hundredevis af huse – og kan tilpasse plantegninger og udtryk, så de matcher jeres grund, behov og budget.

Du kan også se

Kira og Kasper bygger K2 Individual Arkitec

Tina og Mads bygger K2 Individual Funkis

Marianne og Mickey bygger K2 Individual Arkitec

Louise og Johnny bygger K2 Individual Funkis

Mathilde og Mikael bygger K2 Individual Funkis