Salli og Michael bygger K2 Living Funkis

HVORFOR SALLI OG MICHAEL VALGTE K2 HUSET

Vores mål og tanker var at vi gerne ville have et lille hyggeligt hus med masser af varme. Der skulle stadig være god plads til vores familie på 5 personer. Design, funktionalitet og kvalitet var også vigtigt.

Efter besøg hos flere byggefirmaer var vi ikke i tvivl. Vi følte os ikke som “et nummer i køen” og følte der var tid til at tage tingene i vores tempo. Byggerådgiver Jørgen fra K2 Huset forstod vores behov, var behagelig og meget ærlig under alle møder og korrespondancer. Vi følte vi var i trygge hænder fra start. Alle involverede under byggeriet – lige fra den enkelte håndværker til byggeleder –  har været fantastiske og imødekommende.  Vi har under hele byggeprocessen været trygge og har været løbende informeret fra K2 Huset omkring processen. Byggepladsen var altid pænt ryddet, hvilket vi og de mange forbipasserende har været imponeret over. Vi kan kun give K2 Huset de bedste anbefalinger.

 

SALLI OG MICHAEL VALGTE HUSTYPEN FUNKIS, FORDI..

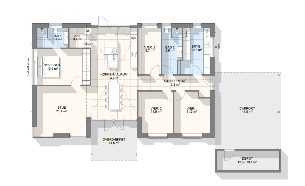
Vi valgte et K2 Living, type Funkis hus. Vi er vilde med det flade tatra loftshøjde i køkkenalrummet og kontrasten til den alm. loftshøjde i stuen giver en flot detalje, samt gør det hyggeligt.

Kunne du se dig selv
i noget lignende?

Vi har bygget hundredevis af huse – og kan tilpasse plantegninger og udtryk, så de matcher jeres grund, behov og budget.

Du kan også se

Mette og Mikkel bygger K2 Living Arkitec

Mette og Jeppe bygger K2 Living Classic

Mai-Britt og Jesper bygger K2 Living Funkis

Louise og Mads bygger K2 Living Arkitec

Nina og Poul bygger K2 Living Arkitec